
Professional CAD Services,
Your Personal Outsourced CAD Drawing Office...
If you require quality 2D or 3D CAD drawings or line drawings for tender, construction, information, updates, archive or record purposes including technical and detailed drafting. Building services drawings, schematic drawings, schedules & building equipment drawings, or just general miscellaneous drawings, you need our CAD drawing bureau services based south of Leicester. We create them from your existing drawings, rough sketches, notes, marked up drawings and even photo's.
Whether it's a small job which takes an hour, work which covers weeks or a long term collaboration, we can help.
Above are some examples of our CAD services...
we provide... 2D CAD Drawings
General Floor Plans/
Line Drawings
M&E/ MEP CAD Drawings
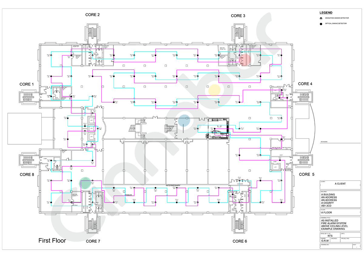
Fire & Security Device Drawings
& Circuit Layouts
2D CAD services
Building Services &
Equipment Drawings
Schematics, Schedules & Panel Layouts
Standard Construction/
Technical Details
we also supply... 2D CAD layouts
Refrigeration & Cold
Room Services Layouts
Residential, Retail, Commercial
Fit-Out Drawings
Audio Visual Design/
Installation Layouts
2D CAD plans
Drawings & Layouts Created
From Marked Up Plans/ Sketches
Amending/ Correcting
Existing DrawingsM&E/ MEP CAD Drawings
Redrawing Old/
Outdated Drawings

And not forgetting 3D Objects, Isometrics & CAD Illustration...
I've probably missed off a few...
If you can't see a particular service you require,
just contact us, without obligation, to see if we can help you.
We're helpful like that...
2D drawing exampleshere... 3D drawing examples
here... printing/ scanning
services...
In conclusion...
what you get...
Cost benefits & time saving through outsourcing. Having an off site CAD office allows you to do what you're good at, finding and carrying out new work projects...whilst..
what we offer...
We do what we're good at, producing professional drawings, with a reliable service that enable your company to tender and work on higher value contracts.
Our Location
8 White Street
Kibworth Beauchamp
Leicestershire
LE8 0JG
Give us a call
Office: 0116 279 6605
Mobile: 07708 656775
Connect online
Email: enquiries@cinnabar.me.uk